Lieu: France , Paris , 200 quai de Valmy,75010
Contexte urbain: Situé Au bord du canal Saint-Martin , le Point Éphémère est un centre dynamiques artistiques placé dans l’ancien magasin de matériaux point P.
Transports : Métro lignes 5,2,7 et bus 26/46/48
L’ idée du projet est lié à l’histoire du point éphémère , en effet j’ai choisi de mettre en avant la nature et sa végétation car le lieu à autrefois connue une période d’abandon et la nature a pue reprendre ses droits . Ainsi j’ai voulu transmettre cette idée en l’appuyant avec des concepts simples et forts , le cheminement , les niveaux et une isolation centrale (la serre du restaurant ).
Rendu 3d- Perspective espace terrasse du rooftop
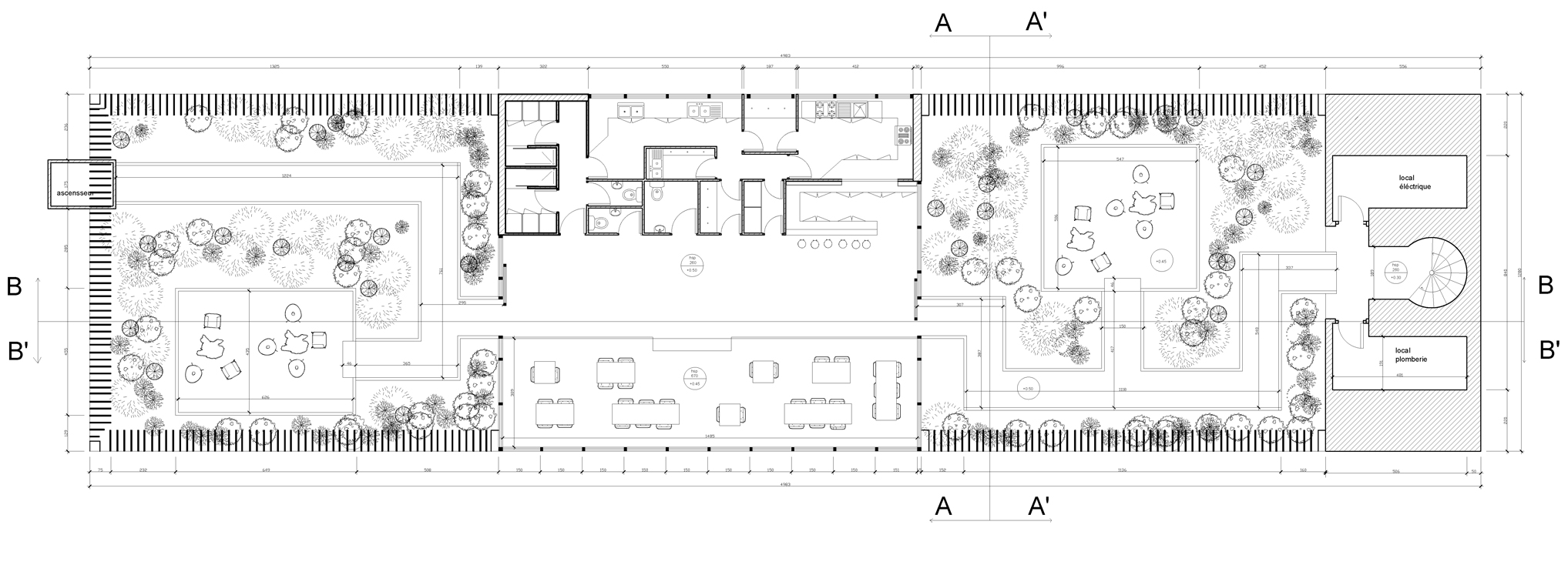
Plan APD 1/50 – Rooftop
Coupe AA – Rooftop
Coupe BB – Rooftop
Coupe CC- Rooftop
Planche tendance
Plan couleur 
Perspective- Espace terrasse
Perspective- Intérieur restaurant
Perspective- Intérieur restaurant de nuit
